- [ 賃貸マンションでペットと暮らす ] TOP
- 賃貸物件を探す
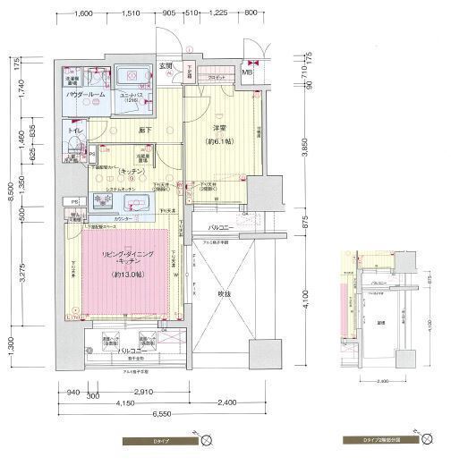
- プレサンスKOBEグレンツ 0405|神戸市兵庫区新開地(神戸高速線新開地駅)のマンション物件詳細
ペット可・ペット相談可の賃貸物件を検索
プレサンスKOBEグレンツ 0405|神戸市兵庫区新開地(神戸高速線新開地駅)のマンション物件詳細
![]() |
![]() |
||||
| その他の写真 | ![]() |
※画像をクリックすると
拡大表示します。 |
|||
|---|---|---|---|---|---|
| ホームメイトFC三宮店
TEL.078-334-2960 |
物件番号 | 100961832609 |
|---|---|---|
|








