- [ 賃貸マンションでペットと暮らす ] TOP
- 賃貸物件を探す
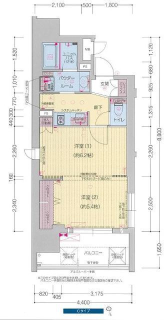
- プレサンス昭和通ESRISE 1003|尼崎市東難波町(阪神本線尼崎駅)のマンション物件詳細
ペット可・ペット相談可の賃貸物件を検索
プレサンス昭和通ESRISE 1003|尼崎市東難波町(阪神本線尼崎駅)のマンション物件詳細
![]() |
![]() |
||||
| その他の写真 | ※画像をクリックすると
拡大表示します。 |
||||
|---|---|---|---|---|---|
| ホームメイトFC三宮店
TEL.078-334-2960 |
物件番号 | 100961833715 |
|---|---|---|
|







