- [ 賃貸マンションでペットと暮らす ] TOP
- 賃貸物件を探す
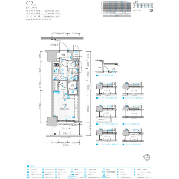
- エスリード神戸大倉山ヒルズ 310|神戸市中央区楠町(神戸市営地下鉄線大倉山駅)のマンション物件詳細
ペット可・ペット相談可の賃貸物件を検索
エスリード神戸大倉山ヒルズ 310|神戸市中央区楠町(神戸市営地下鉄線大倉山駅)のマンション物件詳細
![]() |
![]() |
||||
| その他の写真 | ※画像をクリックすると
拡大表示します。 |
||||
|---|---|---|---|---|---|
| ホームメイトFC三宮店
TEL.078-334-2960 |
物件番号 | 100961846895 |
|---|---|---|
|







